
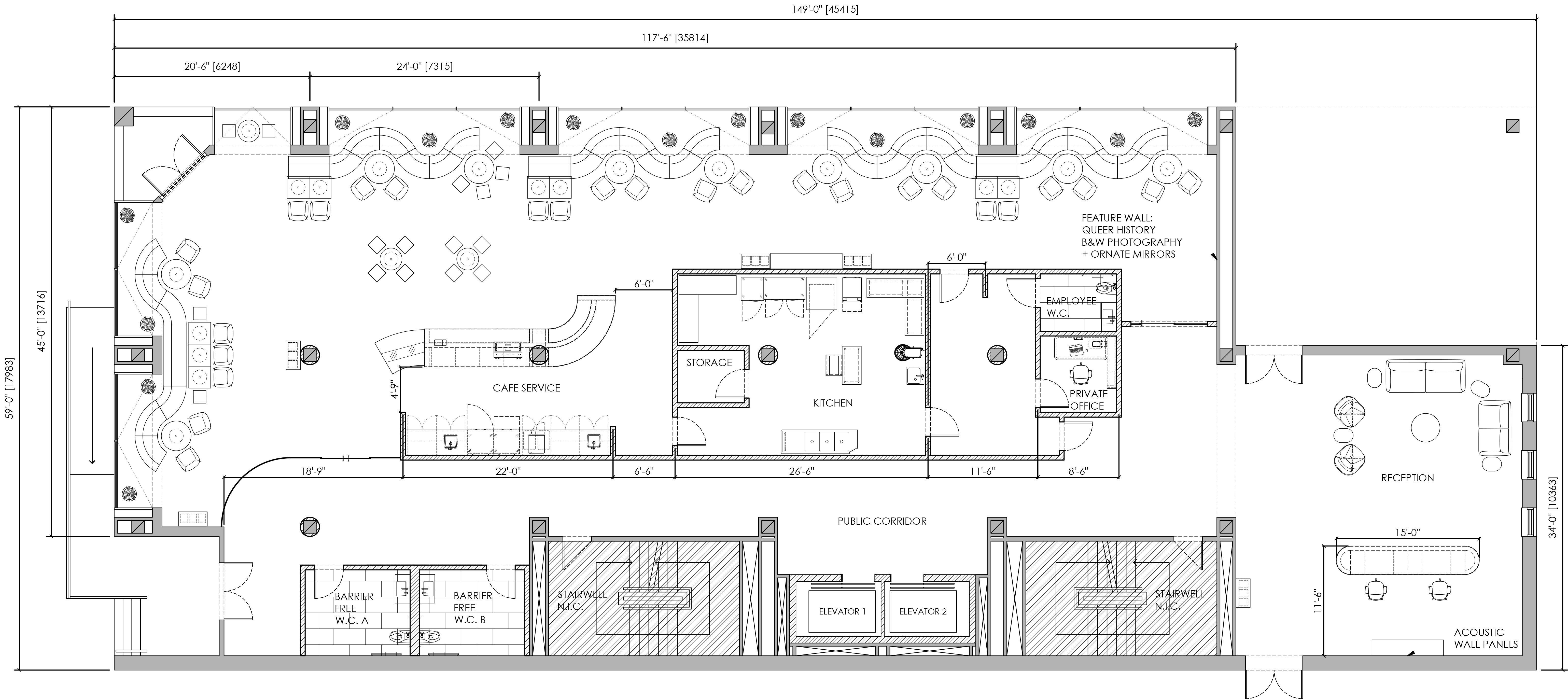
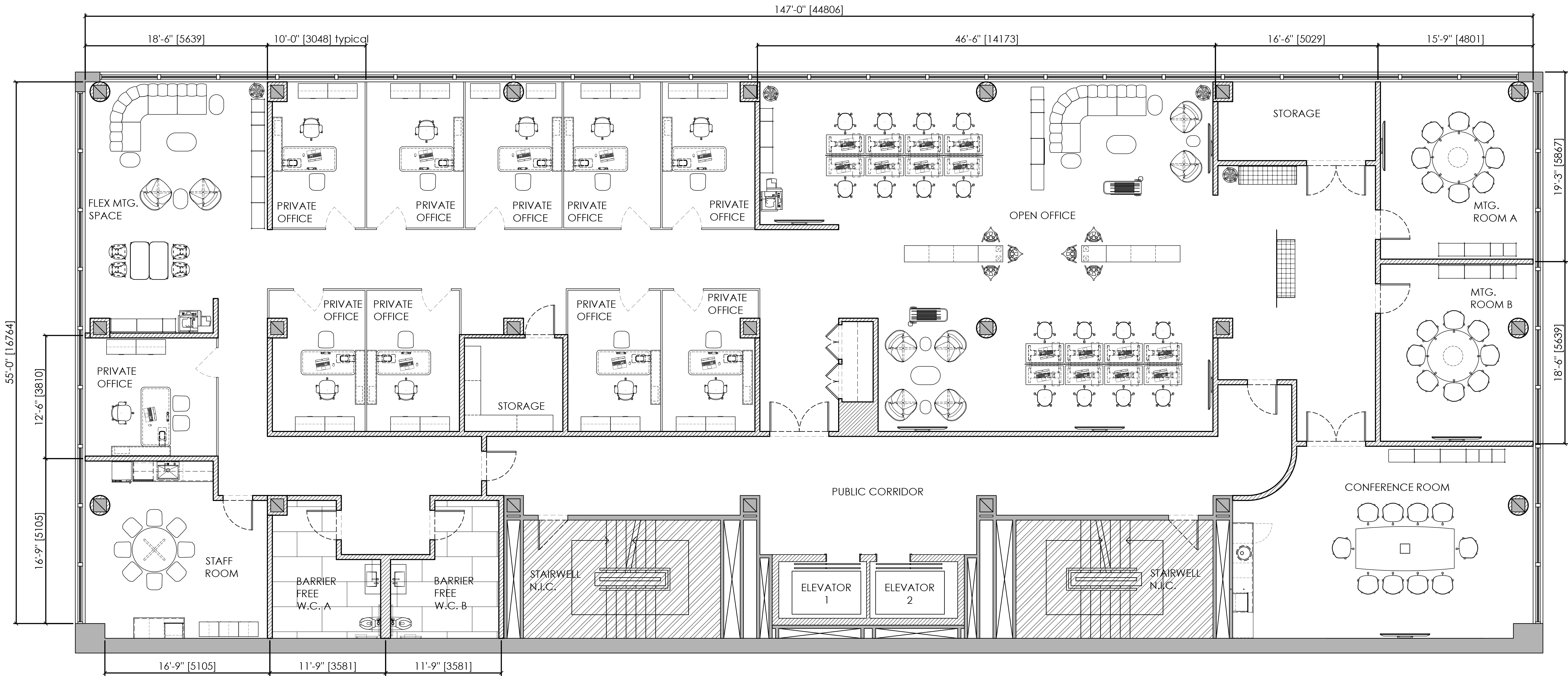
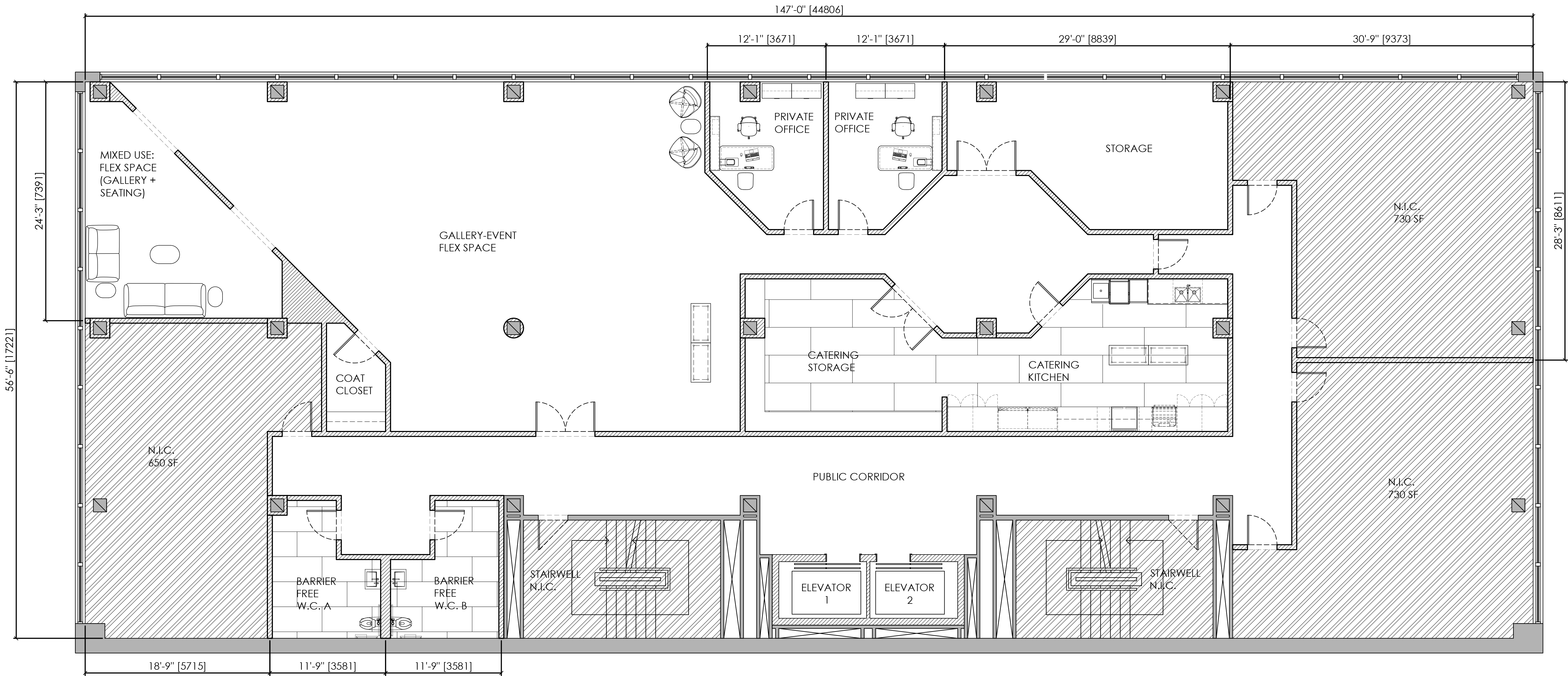
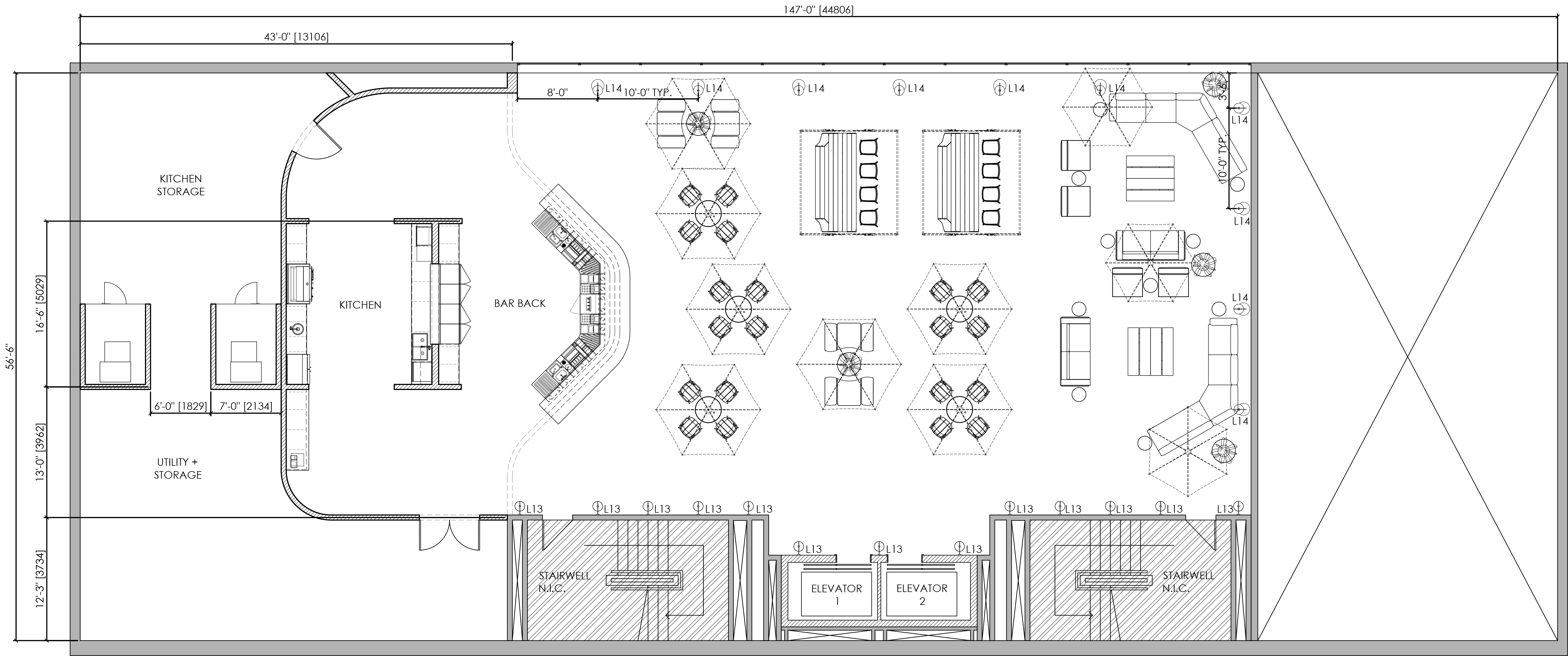
Envisioned as a not-for-profit, this social club celebrates the LGBTQ+ community and provides environments fostering diversity, freedom of expression, and social connection. Occupying all six floors, the centre includes a cafe, drag bar, guest house, fundraising + gallery space, office space and a rooftop patio. Named Fluid+, as a nod to gender and sexual fluidity, the interiors are loosely referential of Studio 54, with a mix 70's aesthetics and colour palettes drawn from lipstick and makeup shades.






