
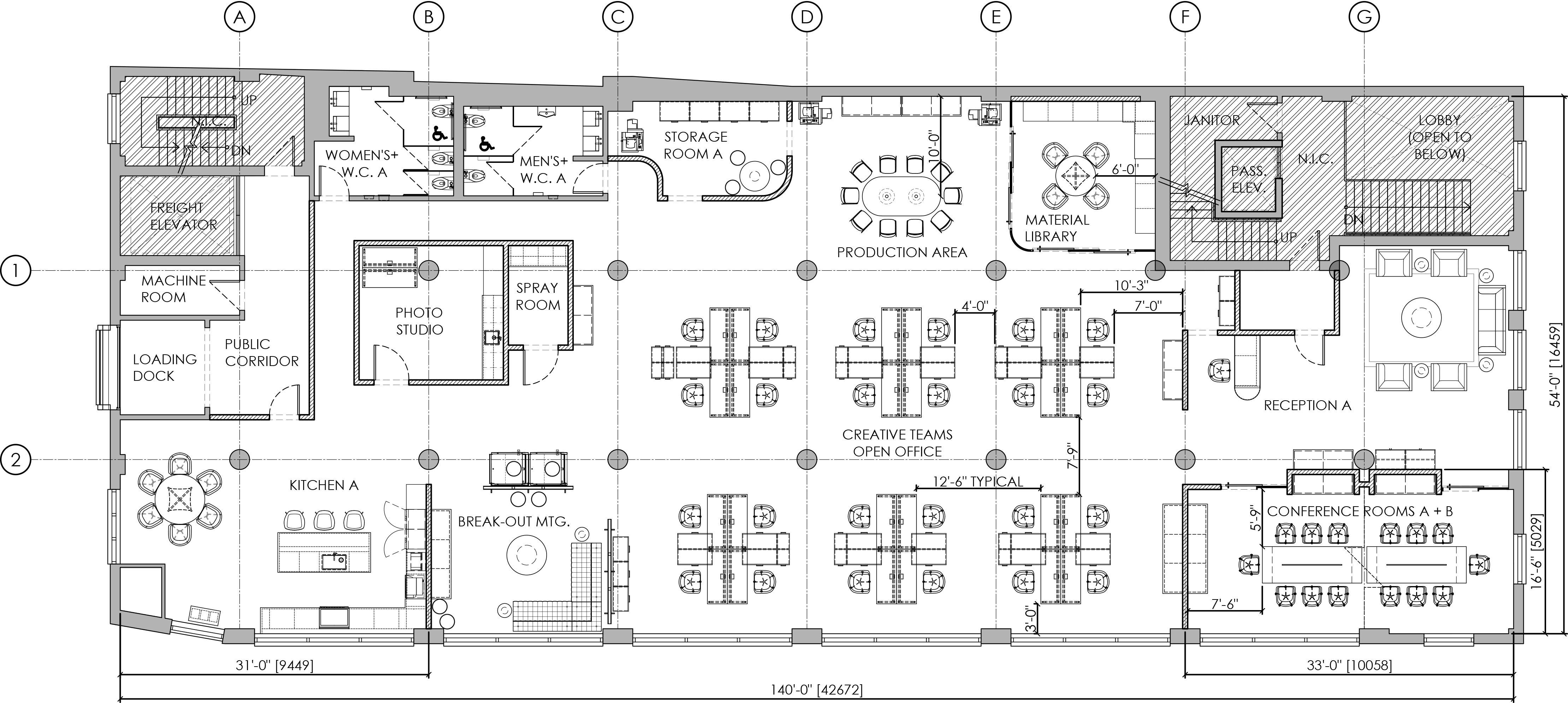
Spanning two floors, the corporate office design for a fictitious satellite office for interior & graphic design firm, Watt, features a non-hierarchical and open workspace for their creative teams on the first floor and a mix of semi-private workstations for their business teams on the second floor. Watt's signature "red-orange" found in their logo is repeated throughout the furnishings, while custom graphics reflect the firm's dedication to retail design.


